【项目介绍】: 中辉学府项目总用地面积约97亩,总建筑面积约16万㎡,总户数1061户,容积率为2.0,绿化率35%,由18栋11-27层住宅、6000㎡社区主题商业街及1500㎡农贸市场组成。小区共设有2个人行出入口,分别位于西、北两侧,途径社区园林直达各楼宇;另设有4个车行出入口,分别位于会所两侧及北侧的左右两侧,直通地下车库;项目规划车位1174个,车位配比1:1.1,采用人车分流设计,最大化的保证小区内部的业主的出行安全。在小区智能打造方面,小区采用了智能可视化对讲、24小时闭路监控巡更系统、智能车牌识别系统、智能ic卡一卡通等,为您打造一个智能化、安全化、便捷化的社区生活体验。并聘请世界知名园林设计公司“贝尔高林”着手打造社区园林景观。 【物业介绍】: 中辉学府专门聘请誉满中国的绿城服务为业主提供专属高端物管服务,让您每一次归家都是享受。绿城服务成立于1998年,是一家具有国家一级物业资质的上市物管公司,21年服务遍及全国130多城市超2亿平方服务面积,是全国同行业中物业类型最多、服务区域最广、服务面积最大的物业服务企业之一,并多年获得“中国物业服务百强满意度领先企业”殊荣。只有最优秀的物管服务才能匹配中辉学府高贵的业主,绿城服务将为业主提供24小时全天候专业的物业服务,住在这样的社区,绝对会让您倍有面子,绿城物业给您最周到贴心的服务,绝对是您的不二选择! 【品牌介绍】: 中辉集团是一家以房地产综合开发为主的企业集团,同时涉及物业管理、金融投资、国内贸易等经营领域。 于2007年进驻九江,并于今年正式更名为“信达集团”。集团秉承“打造精品社区,引领住宅潮流”的产品理念和市场定位,以国际化视角在九江先后开发了公园1号、阳光国际 、中辉世纪城、中辉凯旋城、中辉国际一期、中辉国际二期等多个品质项目,以出色的品质得到8000多个家庭的一致好评和市场同行的广泛追捧,所到之处,皆为标杆。中辉品牌已经成为了九江乃至周边市县购房者买着放心、住着舒心的代名词。2020年中辉载誉腾飞,以深耕13载更懂九江的雄心壮志,耗巨资打造中辉御龙湾和中辉学府两大全新升级力作,形成九子连城的战略格局,勾勒出了一幅宏伟的品质人居蓝图。
基本信息
规划信息
配套信息
销售信息
优选顾问推荐
南北通透双阳台 入户花园完美替代玄关,彰显家居品质 全明厨房紧邻餐厅,美食自由天地 客厅接壤观景阳台,园林美景尽收眼底 主卧独立套房设计,凸显主人家居品质
可拓展面积大,空间灵动多变 阔景阳台与客厅相连,会客休闲更惬意 餐厅零距离对接明厨,料理用餐从容惬意 宽大主卧,配备独立卫浴,更显奢华自在 适用双卧,专为社交达人及大家庭设计
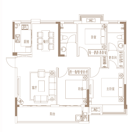
户型方正实用、动静分区,南北通透、通风采光俱佳 高拓展面积、高性能使用,灵动多变,得房率高 U型厨房人性设计,缔造舒适优居生活 4m大开间客厅接壤约7m观景大阳台,尽显居者尊崇品味 主卧套间设计,尺度舒适,尽享私密空间 次卧连接阳台,视野开阔,悦享自然清风

楼盘开盘、降价、优惠等信息,将会在第一时间短信通知您!
置业专家将在2小时内与您联系(8点-23点),请保持电话畅通。
请验证手机号验证码完成提交
置业专家将在2小时内与您联系(8点-23点),请保持电话畅通。
如当前手机号遗失,请联系0755-33526610进行人工修改
如当前手机号遗失,请联系0755-33526610进行人工修改
此楼盘如有优惠/变价通知,我们会及时通知您!
138****8965已经申请
137****8955已经申请
157****4365已经申请
183****8115已经申请
187****5968已经申请
159****8233已经申请